
Panel o grubości 40mm
Sterowana automatycznie
Elegancki biały osprzęt wewnętrzny
Przenikalność cieplna 1,3 W/m2K

![STYLE+ - Opisy[0]](/_next/image?url=https%3A%2F%2Fcdn-pim.gofakro.com%2F%2FStrony%252520WWW%2FBramy%252520gara%2525C5%2525BCowe%2FSTYLE-PLUS%252520F_TQV%2Fstyle-plus-f-tqv-02.webp&w=1920&q=75)
Segmentowa konstrukcja STYLE+ opiera się na panelach o grubości 40 mm wypełnionych pianką PUR, które zapewniają sztywność i stabilne prowadzenie płaszcza. Zewnętrzne poszycie ze stali ocynkowanej jest odporne na odkształcenia i działanie warunków atmosferycznych, a system pióro–wpust eliminuje mostki termiczne. Wersja STYLE+ wyróżnia się wykończeniem elementów wewnętrznych w kolorze białym – lakierowane prowadnice, okucia oraz zabudowana strefa sprężyn nadają wnętrzu garażu czysty, uporządkowany wygląd.
![STYLE+ - Opisy[1]](/_next/image?url=https%3A%2F%2Fcdn-pim.gofakro.com%2F%2FStrony%252520WWW%2FBramy%252520gara%2525C5%2525BCowe%2FSTYLE-PLUS%252520F_TQV%2Fstyle-plus-f-tqv-03.webp&w=1920&q=75)
Brama STYLE+ pracuje w systemie sprężyn skrętnych F, gdzie sprężyny zamontowane są do nadproża, nad płaszczem bramy. Układ wyważenia zapewnia równomierny ruch płaszcza i precyzyjne prowadzenie segmentów, a żywotność sprężyn wynosząca 25 000 cykli przekłada się na wieloletnie użytkowanie. Cały zespół sprężyn znajduje się w estetycznej osłonie, która chroni mechanizm przed zabrudzeniem oraz minimalizuje ryzyko kontaktu z częściami ruchomymi. Podwójne rolki na łożyskach kulkowych dodatkowo stabilizują tor pracy i redukują drgania.
![STYLE+ - Opisy[2]](/_next/image?url=https%3A%2F%2Fcdn-pim.gofakro.com%2F%2FStrony%252520WWW%2FBramy%252520gara%2525C5%2525BCowe%2FSTYLE-PLUS%252520F_TQV%2Fstyle-plus-f-tqv-04.webp&w=1920&q=75)
STYLE+ współpracuje z napędem Marantec, który przenosi ruch poprzez szynę z paskiem zębatym. Rozwiązanie to zapewnia płynną i cichą pracę, bez potrzeby smarowania łańcucha. Napęd wyposażono w funkcje miękkiego startu i zatrzymania, system wykrywania przeszkód oraz zabezpieczenie przed przeciążeniem. W standardzie dostępne jest oświetlenie LED, a możliwość integracji z systemem FAKRO Smart Home pozwala na sterowanie bramą z poziomu aplikacji lub automatycznych scen. Fotokomórki zwiększają bezpieczeństwo, zatrzymując ruch bramy natychmiast po wykryciu przeszkody.
![STYLE+ - Opisy[3]](/_next/image?url=https%3A%2F%2Fcdn-pim.gofakro.com%2F%2FStrony%252520WWW%2FBramy%252520gara%2525C5%2525BCowe%2F%252521%252520Poziome%2F01-desktop.webp&w=1920&q=75)
Panele o grubości 40 mm wypełnione pianką PUR ograniczają straty ciepła, a uszczelki na całym obwodzie i profile międzypanelowe eliminują przewiewy oraz wnikanie wilgoci. Izolacyjność termiczna konstrukcji wpływa na stabilną temperaturę w garażu – szczególnie istotną w przypadku pomieszczeń połączonych z domem.
Prowadnice, zawiasy i uchwyty wykonano z ocynkowanej stali, a w STYLE+ pokryto je dodatkowo białą powłoką lakierniczą. Podwójne rolki zapewniają stabilne prowadzenie płaszcza, a osłony dolnych prowadnic zabezpieczają stal przed kontaktem z wilgocią, wydłużając trwałość całego układu.
![STYLE+ - Opisy[5]](/_next/image?url=https%3A%2F%2Fcdn-pim.gofakro.com%2F%2FStrony%252520WWW%2FBramy%252520gara%2525C5%2525BCowe%2F%252521%252520Poziome%2F05-desktop.webp&w=1920&q=75)
Mechaniczne zabezpieczenie pęknięcia sprężyny natychmiast blokuje wał w razie awarii, zapobiegając opadnięciu płaszcza. Dodatkowe zabezpieczenia linek nośnych (w wybranych rozmiarach), segmenty chroniące przed przycięciem palców oraz zabudowana strefa sprężyn zwiększają poziom bezpieczeństwa użytkowników.
Napęd Marantec wyposażony jest w system przeciążeniowy oraz fotokomórki, które zatrzymują bramę w przypadku wykrycia przeszkody. Funkcja miękkiego startu zmniejsza obciążenia działające na prowadnice i sprężyny, a opcjonalny zasilacz awaryjny umożliwia obsługę bramy także podczas zaniku napięcia.
![STYLE+ - Opisy[7]](/_next/image?url=https%3A%2F%2Fcdn-pim.gofakro.com%2F%2FStrony%252520WWW%2FBramy%252520gara%2525C5%2525BCowe%2F%252521%252520Poziome%2F03-desktop.webp&w=1920&q=75)
Panele dostępne są w strukturach woodgrain, smooth, deep mat, drewnopodobnej oraz piaskowej i oferowane w kolorach RAL. Trwała powłoka lakiernicza zachowuje wygląd przez wiele lat, a rozszerzona paleta dekorów umożliwia dopasowanie bramy do stolarki całego domu.
STYLE+ wyróżnia się kompletne lakierowanym na biało osprzętem, w tym prowadnicami, rolkami, wspornikami i osłonami sprężyn. Jasne wnętrze garażu poprawia widoczność, a jednorodny kolor pozwala uzyskać estetyczny, uporządkowany efekt nawet przy otwartej bramie.
| Szerokość bramy [mm] | ||||||||||||
|---|---|---|---|---|---|---|---|---|---|---|---|---|
| Wysokość bramy [mm] | 2400 | 2500 | 2600 | 2750 | 3000 | 3200 | 3500 | 4000 | 4250 | 4500 | 5000 | 6000 |
| 1875 | F, X | F, X | F, X | F, X | F, X | F, X | F, X | F, X | F, X | F, X | F | F |
| 2000 | F, X | F, X | F, X | F, X | F, X | F, X | F, X | F, X | F, X | F, X | F | F |
| 2125 | F, X | F, X | F, X | F, X | F, X | F, X | F, X | F, X | F, X | F, X | F | F |
| 2250 | F, X | F, X | F, X | F, X | F, X | F, X | F, X | F, X | F, X | F, X | F | F |
| 2375 | F, X | F, X | F, X | F, X | F, X | F, X | F, X | F, X | F, X | F, X | F | F |
| 2500 | F, X | F, X | F, X | F, X | F, X | F, X | F, X | F, X | F, X | F | F | F |
| 2625 | F | F | F | F | F | F | F | F | F | F | F | F |
| 2750 | F | F | F | F | F | F | F | F | F | F | F | F |
| 2875 | F | F | F | F | F | F | F | F | F | F | F | F |
| 3000 | F | F | F | F | F | F | F | F | F | F | F | F |
![STYLE+ - Opisy[9]](https://cdn-pim.gofakro.com//Strony%2520WWW/Bramy%2520gara%25C5%25BCowe/STYLE-PLUS%2520F_TQV/wymiary-style-plus-f.webp)
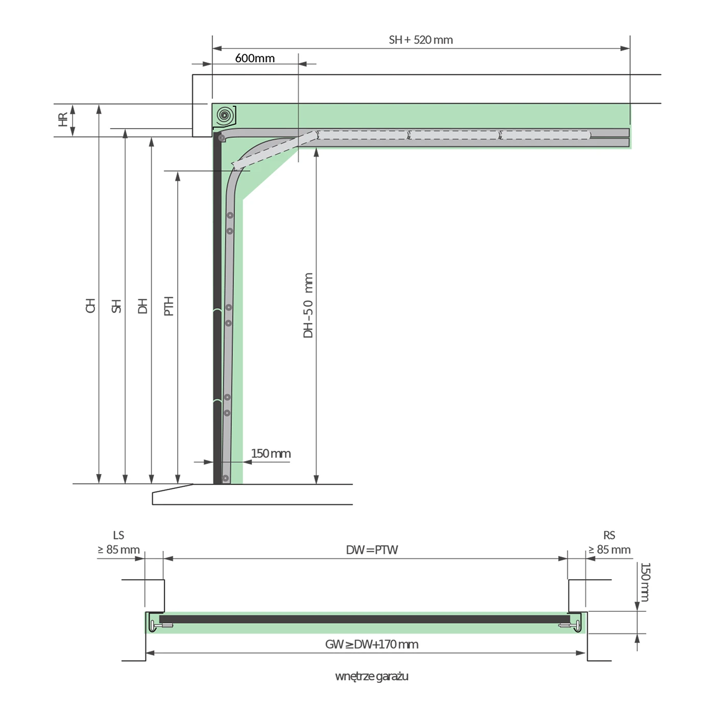
| Opis | Wartość / Zależność |
|---|---|
| DH – Wysokość otworu (wymiar zamówieniowy) | — |
| DW – Szerokość otworu (wymiar zamówieniowy) | — |
| HR – Nadproże | HR ≥ 200 mm |
| SH – Wysokość systemu prowadnic | SH = DH + 60 mm |
| CH – Wymagana minimalna wysokość garażu | CH = DH + 200 mm |
| GW – Wymagana minimalna szerokość garażu | GW = DW + 180 mm |
| LS – Przestrzeń boczna lewa (węgarek) | LS ≥ 90 mm |
| RS – Przestrzeń boczna prawa (węgarek) | RS ≥ 90 mm |
| PTH – Światło przejazdu (wysokość) | PTH = DH − 175 mm (ręczna) PTH = DH − 10 mm (automatyczna) |
| PTW – Światło przejazdu (szerokość) | PTW = DW |
Panel bramy
Panel o grubości 40 mm wykonany jest z dwóch stalowych blach. Wypełnienie stanowi pianka poliuretanowa PUR. Segmenty łączone są w systemie pióro–wpust, eliminując mostki termiczne i zapewniając równą powierzchnię całego płaszcza. Konstrukcja panelu pozwala uzyskać współczynnik przenikania ciepla 1,3 W/(m²K).

Kolorystyka zewnętrzna
Strona zewnętrzna paneli dostępna jest w trzech strukturach: woodgrain, smooth, deep mat, drewnopodobnej oraz piaskowej. Powłoka proszkowa charakteryzuje się odpornością na UV i mikrozarysowania. W wersji STYLE + dostępne są kolory podstawowe: Antracyt RAL 7016, Antracyt RAL 7016 drewnopodony, Biały RAL 9016, Brąz RAL 8014, Srebrny RAL 9006, Czarny RAL 9005, Złoty Dąb, Orzech, Winchester, Turner Oak, Mahoń, Dąb bagienny.

Uszczelki obwodowe
System uszczelnień obwodowych składa się z elastycznych profili wykonanych z gumy EPDM odpornej na starzenie, promieniowanie UV i zmienne temperatury. Uszczelki zamontowane są wzdłuż bocznych prowadnic, w górnym profilu oraz w dolnym panelu, tworząc ciągłą barierę ograniczającą infiltrację powietrza i wody. Dzięki odpowiednio dobranej twardości materiału zapewniają one szczelne przyleganie do podłoża i krawędzi prowadnic, poprawiając parametry cieplne i akustyczne całej konstrukcji.

Uszczelki międzypanelowe
Połączenia pomiędzy poszczególnymi segmentami wyposażone są w wargowe uszczelki z EPDM, które kompensują drobne odchyłki wymiarowe i niwelują przenikanie powietrza oraz wody w strefie łączenia. Profil uszczelki został zaprojektowany tak, aby podczas pracy bramy utrzymywać stały docisk między panelami, niezależnie od temperatury i kierunku ruchu. Element ten pełni również funkcję tłumienia drgań, co wpływa na cichą i stabilną pracę całego płaszcza.

Zabezpieczenie pęknięcia sprężyn
System sprężyn skrętnych i naciągowych wyposażony jest w mechanizm blokujący, który w przypadku pęknięcia sprężyny natychmiast zatrzymuje obrót wału lub mechanizmu prowadzącego. Rozwiązanie działa mechanicznie – bez potrzeby zasilania – i blokuje bębny nawojowe, zapobiegając nagłemu opadnięciu skrzydła. Mechanizm spełnia wymagania normy EN 13241 w zakresie bezpieczeństwa użytkowania i może być ponownie użyty po wymianie uszkodzonej sprężyny.

System sprężyn F / X
Bramę STYLE+ można wyposażyć w dwa rozwiązania sprężynowe:
F – sprężyny skrętne z przodu montowane do nadproża, nad płaszczem bramy - zalecane przy standardowych wysokościach montażowych;
R – sprężyny skrętne montowane z tyłu, na końcu prowadnic poziomych w głębi garażu - umożliwiające instalację przy niskim nadprożu;
Sprężyny wykonane są z hartowanego drutu stalowego i posiadają trwałość 25 000 cykli, zgodnie z normą EN 13241. W wersji STYLE+ cały układ sprężynowy znajduje się w pełnej osłonie, która zabezpiecza mechanizm przed zabrudzeniem i poprawia estetykę wnętrza garażu.

Rolki prowadzące
W wersji STYLE+ stosowane są rolki podwójne z osłonami ochronnymi (w kolorze białym), które poprawiają estetykę i bezpieczeństwo użytkowania. Rolki podwójne i łożyskowane zapewniają cichy oraz bardziej płynny bieg płaszcza bramy w prowadnicach.

Zasilacz awaryjny
Opcjonalne urządzenie podtrzymujące pozwala na obsługę bramy w przypadku zaniku zasilania sieciowego. Akumulator zapewnia wykonanie kilku pełnych cykli pracy napędu Marantec, automatycznie przełącza się na zasilanie awaryjne i posiada zabezpieczenie przed głębokim rozładowaniem ogniw.

Napęd i sterowanie
STYLE+ jest przeznaczona do pracy wyłącznie w trybie automatycznym i współpracuje z napędem Marantec Comfort. Napęd korzysta z szyny z paskiem zębatym, który zapewnia bardzo cichą i płynną pracę bez konieczności smarowania. Wbudowane systemy bezpieczeństwa obejmują wykrywanie przeszkód, miękki start i miękkie zatrzymanie oraz regulację szybkości ruchu. Istnieje możliwość integracji z FAKRO Smart Home co pozwala na obsługę bramy z poziomu aplikacji mobilnej.

Fotokomórki
Fotokomórki montowane w dolnej części prowadnic pracują w podczerwieni i chronią użytkowników przed przypadkowym domknięciem bramy. Przerwanie wiązki powoduje natychmiastowe zatrzymanie ruchu i cofnięcie płaszcza. Obudowa IP54 zapewnia odporność na wilgoć i pył. Fotokomórki są opcją za dopłatą.

Piloty
System sterowania radiowego wykorzystuje piloty o częstotliwości 868 MHz z kodowaniem zmiennym Rolling Code. Dostępne są wersje 2-kanałowe i 4-kanałowe, umożliwiające obsługę jednej lub kilku bram. Obudowa pilotów wykonana jest z tworzywa odpornego na uderzenia.

Rygiel wewnętrzny
Rygiel wewnętrzny pełni funkcję mechanicznego zabezpieczenia bramy przed otwarciem od zewnątrz. Wykonany jest ze stalowego pręta pozwalający na dodatkowe zamknęcie bramy. Zastosowanie rygla zwiększa bezpieczeństwo bramy i stanowi instotny element uniemożliwiajacy wyważenie bramy. Rygiel jest opcją za dopłatą.

Kolorystyka wewnętrzna i osprzęt
Bramy STYLE+ wyróżniają się estetycznym wykończeniem wnętrza — wszystkie okucia, wsporniki i elementy mechaniczne są lakierowane na biało, co tworzy spójny, czysty wygląd. Powłoka lakiernicza zwiększa również ochronę antykorozyjną.

Okucia i szyny prowadzące
Okucia wykonane są ze stali ocynkowanej o grubości 1,5 mm, a w wersji STYLE+ dodatkowo pokrywane powłoką lakierniczą w kolorze białym.

Szyna napędowa z paskiem
Szyna napędowa wykonana jest z profilu stalowego zabezpieczonego cynkiem. Wewnątrz znajduje się pasek zębaty charakteryzujący się elastycznością, odpornością na rozciąganie i cichą pracą. Wózek napędowy wykonuje ruch liniowy bez drgań, a montaż odbywa się na stalowych wspornikach z możliwością regulacji.

Osłony wału i prowadnic dolnych
STYLE+ posiada osłonę wału sprężynowego, chroniącą elementy ruchome przed kurzem oraz przypadkowym kontaktem. Dodatkowo posiada osłony dolnych prowadnic, które zabezpieczają pionowe prowadnice przed wilgocią i korozją, wydłużając ich trwałość.

Nasze produkty wyróżniają się tym, co naprawdę ma znaczenie. Poznaj cechy, które czynią je niezawodnymi i wyjątkowymi w codziennym użytkowaniu.
Trwała konstrukcja segmentowa

Panele o grubości 40 mm wypełnione pianką PUR zapewniają dobrą izolacyjność oraz wysoką sztywność całej powierzchni. System pióro–wpust stabilizuje połączenia między segmentami i ogranicza straty ciepła na łączeniach.
Płynna i cicha praca układu prowadzenia

Rolki poruszające się po stalowych prowadnicach na łożyskach kulkowych redukują tarcie i hałas podczas ruchu. Stabilne prowadzenie przekłada się na mniejsze drgania, co wydłuża żywotność mechanizmu i poprawia komfort użytkowania.
Elementy zwiększające bezpieczeństwo

Zabezpieczenia układów sprężyn chronią przed gwałtownym opadnięciem płaszcza w razie awarii. Kształt segmentów zapobiega przytrzaśnięciu palców, a w wariantach automatycznych dostępne są fotokomórki wykrywające przeszkody.
My wiemy! Zobacz mapę naszych dystrybutorów