
Panel o grubości 40mm
Sprężyny skrętne z przodu, z tyłu lub w prowadnicach
Sterowana ręcznie lub automatycznie
Przenikalność cieplna 1,3 W/m2K

![PROFI+ - Opisy[0]](/_next/image?url=https%3A%2F%2Fcdn-pim.gofakro.com%2F%2FStrony%252520WWW%2FBramy%252520gara%2525C5%2525BCowe%2FPROFI-PLUS%252520F_TQP%2Fprofi-plus-f-tqp-02.webp&w=1920&q=75)
Konstrukcja bramy PROFI+ oparta jest na panelach stalowych o grubości 40 mm wypełnionych pianką poliuretanową (PUR) o wysokiej gęstości. Segmenty wykonano z dwóch blach stalowych. Zastosowane połączenie pióro–wpust z uszczelką termiczną eliminuje mostki cieplne, a współczynnik przenikania ciepła U = 1,3 W/m²K gwarantuje dobrą izolacyjność dla garaży ogrzewanych. Cała konstrukcja pozostaje sztywna, stabilna i szczelna nawet przy intensywnej eksploatacji.
![PROFI+ - Opisy[1]](/_next/image?url=https%3A%2F%2Fcdn-pim.gofakro.com%2F%2FStrony%252520WWW%2FBramy%252520gara%2525C5%2525BCowe%2FPROFI-PLUS%252520F_TQP%2Fprofi-plus-f-tqp-08.webp&w=1920&q=75)
Brama PROFI+ wyposażona jest w system sprężyn skrętnych montowanych z przodu, nad otworem wjazdowym. Ich konfiguracja dobierana jest w zależności od głębokości garażu i wysokości nadproża, dzięki czemu można uzyskać optymalne wyważenie i płynną pracę nawet w ograniczonej przestrzeni montażowej. Sprężyny wykonane są z hartowanego drutu stalowego pokrytego warstwą cynku, a ich trwałość określono na 20 000 cykli pracy. Mechaniczne zabezpieczenie zapobiega gwałtownemu opadnięciu płaszcza w przypadku uszkodzenia sprężyny. Do miejsc z ograniczoną wysokością nadproża dostępne są również układy montażowe R (sprężyny skrętne z tyłu) i X (sprężyny naciągowe w prowadnicach).
![PROFI+ - Opisy[2]](/_next/image?url=https%3A%2F%2Fcdn-pim.gofakro.com%2F%2FStrony%252520WWW%2FBramy%252520gara%2525C5%2525BCowe%2FPROFI-PLUS%252520F_TQP%2Fprofi-plus-f-tqp-04.webp&w=1920&q=75)
Brama PROFI+ współpracuje z napędami Sommer i Marantec, wyposażonymi w funkcje miękkiego startu i zatrzymania oraz w system wykrywania przeszkód. Szyna napędowa dostępna jest w dwóch wersjach – z paskiem zębatym, zapewniającym cichą pracę i wysoką kulturę działania, oraz z łańcuchem stalowym, odpornym na intensywną eksploatację i przeznaczonym do garaży, gdzie kluczowa jest wytrzymałość układu mechanicznego. Automatyka może być zintegrowana z systemem FAKRO Smart Home, za pomocą bramki. Brama PROFI+ jest sterowana pilotem radiowym dołączonym w zestawie. Dodatkowym elementem bezpieczeństwa są fotokomórki, które wykrywają przeszkody w świetle przejazdu i automatycznie zatrzymują bramę w razie kolizji.
![PROFI+ - Opisy[3]](/_next/image?url=https%3A%2F%2Fcdn-pim.gofakro.com%2F%2FStrony%252520WWW%2FBramy%252520gara%2525C5%2525BCowe%2F%252521%252520Poziome%2F01-desktop.webp&w=1920&q=75)
Panele o grubości 40 mm wypełnione pianką PUR oraz system uszczelek obwodowych i międzypanelowych skutecznie ograniczają straty ciepła i przenikanie hałasu. Zastosowane uszczelki z gumy EPDM zachowują elastyczność w szerokim zakresie temperatur i utrzymują stały docisk do krawędzi bramy. Parametry izolacyjne potwierdzają badania klasy 3 przepuszczalności powietrza oraz 3 wodoszczelności.
Prowadnice i okucia wykonane są ze stali ocynkowanej o grubości 1,5 mm, odpornej na korozję i deformacje. Rolki łożyskowane z tulejami tłumiącymi drgania zapewniają płynne prowadzenie płaszcza, a system podwójnych rolek zwiększa stabilność przy większych wymiarach bramy. Wszystkie elementy poddano testom zmęczeniowym i potwierdzono ich odporność na minimium 20 000 cykli pracy.
![PROFI+ - Opisy[4]](/_next/image?url=https%3A%2F%2Fcdn-pim.gofakro.com%2F%2FStrony%252520WWW%2FBramy%252520gara%2525C5%2525BCowe%2F%252521%252520Poziome%2F05-desktop.webp&w=1920&q=75)
System sprężyn wyposażono w blokadę przed pęknięciem oraz mechaniczne zatrzymanie wału w razie awarii. W opcji dostępne są fotokomórki, które automatycznie zatrzymują bramę po wykryciu przeszkody w świetle przejazdu.
Napędy elektryczne współpracują z pilotami 2- i 4-kanałowymi o częstotliwości 868 MHz, z systemem kodowania. Mechanizm pracuje cicho i równomiernie, a czujniki przeciążeniowe zapewniają bezpieczne zatrzymanie w razie kolizji. Istnieje możliwość integracji z systemami automatyki budynkowej i zasilania awaryjnego.
![PROFI+ - Opisy[6]](/_next/image?url=https%3A%2F%2Fcdn-pim.gofakro.com%2F%2FStrony%252520WWW%2FBramy%252520gara%2525C5%2525BCowe%2F%252521%252520Poziome%2F03-desktop.webp&w=1920&q=75)
Zewnętrzne panele dostępne są w strukturach woodgrain, smooth, deep mat, piasowych oraz drewnopodobnych co umożliwia dopasowanie wyglądu do elewacji budynku. Powłoka lakiernicza odporna na promieniowanie UV, wilgoć oraz działanie środków chemicznych.
W standardzie oferowane są kolory RAL 9016 (biały), RAL 7016 (antracyt), RAL 7016 (antracyt drewnopodobny), RAL 8014 (brąz), RAL 9006 (srebrny), RAL 9005 (czarny) a także dekory Złoty Dąb, Orzech, Winchester, Dąb bagienny, Turner Oak. Na życzenie możliwe jest wykonanie dowolnego koloru z palety RAL. Wnętrze bramy pozostaje w kolorze biały RAL 9016.
| Szerokość bramy [mm] | ||||||||||||
|---|---|---|---|---|---|---|---|---|---|---|---|---|
| Wysokość bramy [mm] | 2400 | 2500 | 2600 | 2750 | 3000 | 3200 | 3500 | 4000 | 4250 | 4500 | 5000 | 6000 |
| 1875 | F, X, R | F, X, R | F, X, R | F, X, R | F, X, R | F, X, R | F, X, R | F, X, R | F, X, R | F, X, R | F, R | F |
| 2000 | F, X, R | F, X, R | F, X, R | F, X, R | F, X, R | F, X, R | F, X, R | F, X, R | F, X, R | F, X, R | F, R | F |
| 2125 | F, X, R | F, X, R | F, X, R | F, X, R | F, X, R | F, X, R | F, X, R | F, X, R | F, X, R | F, X, R | F, R | F |
| 2250 | F, X, R | F, X, R | F, X, R | F, X, R | F, X, R | F, X, R | F, X, R | F, X, R | F, X, R | F, X, R | F, R | F |
| 2375 | F, X, R | F, X, R | F, X, R | F, X, R | F, X, R | F, X, R | F, X, R | F, X, R | F, X, R | F, X, R | F, R | F |
| 2500 | F, X, R | F, X, R | F, X, R | F, X, R | F, X, R | F, X, R | F, X, R | F, X, R | F, X, R | F, R | F, R | F |
| 2625 | F, R | F, R | F, R | F, R | F, R | F, R | F, R | F, R | F, R | F, R | F, R | F |
| 2750 | F, R | F, R | F, R | F, R | F, R | F, R | F, R | F, R | F, R | F, R | F, R | F |
| 2875 | F, R | F, R | F, R | F, R | F, R | F, R | F, R | F, R | F, R | F, R | F | F |
| 3000 | F, R | F, R | F, R | F, R | F, R | F, R | F, R | F, R | F, R | F, R | F | F |
![PROFI+ - Opisy[8]](https://cdn-pim.gofakro.com//Strony%2520WWW/Bramy%2520gara%25C5%25BCowe/PROFI-PLUS%2520F_TQP/wymiary-profi-plus-f.webp)
| Opis | Wartość / Zależność |
|---|---|
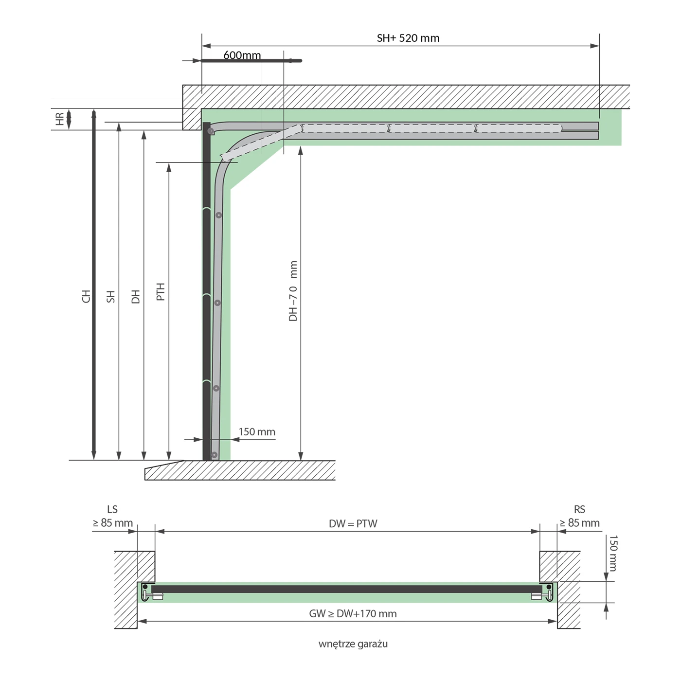
| DH – Wysokość otworu (wymiar zamówieniowy) | — |
| DW – Szerokość otworu (wymiar zamówieniowy) | — |
| HR – Nadproże | HR ≥ 200 mm |
| SH – Wysokość systemu prowadnic | SH = DH + 60 mm |
| CH – Wymagana minimalna wysokość garażu | CH = DH + 200 mm |
| GW – Wymagana minimalna szerokość garażu | GW = DW + 180 mm |
| LS – Przestrzeń boczna lewa (węgarek) | LS ≥ 90 mm |
| RS – Przestrzeń boczna prawa (węgarek) | RS ≥ 90 mm |
| PTH – Światło przejazdu (wysokość) | PTH = DH − 175 mm (ręczna) PTH = DH − 10 mm (automatyczna) |
| PTW – Światło przejazdu (szerokość) | PTW = DW |
![PROFI+ - Opisy[9]](https://cdn-pim.gofakro.com//Strony%2520WWW/Bramy%2520gara%25C5%25BCowe/PROFI-PLUS%2520F_TQP/wymiary-profi-plus-x.webp)
| Opis | Wartość / Zależność |
|---|---|
| DH – Wysokość otworu (wymiar zamówieniowy) | — |
| DW – Szerokość otworu (wymiar zamówieniowy) | — |
| HR – Nadproże | HR ≥ 100 mm (ręczna) HR ≥ 130 mm (automatyczna) |
| SH – Wysokość systemu prowadnic | SH = DH + 60 mm |
| CH – Wymagana minimalna wysokość garażu | CH = DH + 100 mm |
| GW – Wymagana minimalna szerokość garażu | GW = DW + 180 mm |
| LS – Przestrzeń boczna lewa (węgarek) | LS ≥ 90 mm |
| RS – Przestrzeń boczna prawa (węgarek) | RS ≥ 90 mm |
| PTH – Światło przejazdu (wysokość) | PTH = DH − 175 mm (ręczna) PTH = DH − 10 mm (automatyczna) |
| PTW – Światło przejazdu (szerokość) | PTW = DW |
![PROFI+ - Opisy[10]](https://cdn-pim.gofakro.com//Strony%2520WWW/Bramy%2520gara%25C5%25BCowe/PROFI-PLUS%2520F_TQP/wymiary-profi-plus-r.webp)
| Opis | Wartość / Zależność |
|---|---|
| DH – Wysokość otworu (wymiar zamówieniowy) | — |
| DW – Szerokość otworu (wymiar zamówieniowy) | — |
| HR – Nadproże | HR ≥ 100 mm (ręczna) HR ≥ 130 mm (automatyczna) |
| SH – Wysokość systemu prowadnic | SH = DH + 60 mm |
| CH – Wymagana minimalna wysokość garażu | CH = DH + 100 mm |
| GW – Wymagana minimalna szerokość garażu | GW = DW + 180 mm |
| LS – Przestrzeń boczna lewa (węgarek) | LS ≥ 90 mm |
| RS – Przestrzeń boczna prawa (węgarek) | RS ≥ 90 mm |
| PTH – Światło przejazdu (wysokość) | PTH = DH − 175 mm (ręczna) PTH = DH − 10 mm (automatyczna) |
| PTW – Światło przejazdu (szerokość) | PTW = DW |
Panel bramy
Panel o grubości 40 mm wykonany jest z dwóch stalowych blach a rdzeń stanowi pianka poliuretanowa (PUR), wypełniająca szczelnie całą przestrzeń pomiędzy poszyciami. Konstrukcja panelu gwarantuje bardzo dobre parametry cieplne – współczynnik przenikania ciepła dla całej bramy wynosi U = 1,3 W/m²K – oraz wysoką odporność na hałas i odkształcenia. Połączenia między segmentami wykonane są w systemie pióro–wpust, co zapewnia równą powierzchnię i eliminuje mostki termiczne.

Kolorystyka zewnętrzna
Poszycie zewnętrzne paneli dostępne jest w strukturach: woodgrain, smooth, deep mat, drewnopodobnej oraz piaskowej, które różnią się fakturą i stopniem połysku powierzchni. Wariant woodgrain odwzorowuje rysunek drewna i jest najodporniejszy na mikrozarysowania, smooth to powierzchnia idealnie gładka o nowoczesnym wyglądzie, a piaskowa ma delikatną, matową strukturę. W standardzie oferowane są kolory RAL 9016 (biały) oraz RAL 7016 (antracyt), RAL 7016 (antracyt drewnopodobny), RAL 8014 (brąz), RAL 9006 (srebrny), RAL 9005 (czarny), a w opcji dekory Złoty Dąb, Winchester, Orzech, Dąb bagienny i Turner Oak. Kolorystyka zewnętrzna jest zgodna z linią stolarki pionowej FAKRO, co pozwala na spójne wykończenie budynku.

Uszczelki obwodowe
System uszczelnień obwodowych składa się z elastycznych profili wykonanych z gumy EPDM odpornej na starzenie, promieniowanie UV i zmienne temperatury. Uszczelki zamontowane są wzdłuż bocznych prowadnic, w górnym profilu oraz w dolnym panelu, tworząc ciągłą barierę ograniczającą infiltrację powietrza i wody. Dzięki odpowiednio dobranej twardości materiału zapewniają one szczelne przyleganie do podłoża i krawędzi prowadnic, poprawiając parametry cieplne i akustyczne całej konstrukcji.

Uszczelki międzypanelowe
Połączenia pomiędzy poszczególnymi segmentami wyposażone są w wargowe uszczelki z EPDM, które kompensują drobne odchyłki wymiarowe i niwelują przenikanie powietrza oraz wody w strefie łączenia. Profil uszczelki został zaprojektowany tak, aby podczas pracy bramy utrzymywać stały docisk między panelami, niezależnie od temperatury i kierunku ruchu. Element ten pełni również funkcję tłumienia drgań, co wpływa na cichą i stabilną pracę całego płaszcza.

Zabezpieczenie pęknięcia sprężyn
System sprężyn skrętnych i naciągowych wyposażony jest w mechanizm blokujący, który w przypadku pęknięcia sprężyny natychmiast zatrzymuje obrót wału lub mechanizmu prowadzącego. Rozwiązanie działa mechanicznie – bez potrzeby zasilania – i blokuje bębny nawojowe, zapobiegając nagłemu opadnięciu skrzydła. Mechanizm spełnia wymagania normy EN 13241 w zakresie bezpieczeństwa użytkowania i może być ponownie użyty po wymianie uszkodzonej sprężyny.

System sprężyn F / R / X
Bramy PROFI+ mogą być wyposażone w jeden z trzech systemów równoważenia ciężaru płaszcza:
System F – sprężyny skrętne montowane z przodu, do nadproża. To rozwiązanie uniwersalne, stosowane w większości typowych garaży, zapewniające łatwy dostęp serwisowy i optymalne rozłożenie sił.
System R – sprężyny skrętne umieszczone z tyłu, na końcu prowadnic poziomych w głębi garażu. Pozwala na montaż w garażach z ograniczoną wysokością nadproża lub w miejscach, gdzie wymagana jest niższa zabudowa nad bramą.
System X – sprężyny naciągowe montowane wzdłuż prowadnic pionowych, przeznaczone do mniejszych i lżejszych bram. Pozwala na montaż w garażach z ograniczoną wysokością nadproża lub w miejscach, gdzie wymagana jest niższa zabudowa nad bramą. W systemie tym zastosowane są osłony pionowe, które zakrywają sprężyny i robią je niewidoczne dla użytkownika.
Wszystkie warianty zapewniają płynne działanie i równomierne podnoszenie płaszcza, a poniżej planowana jest sekcja z wizualizacją ich układów konstrukcyjnych.

Rolki prowadzące
Rolki prowadzące wykonane są z tworzywa odpornego na ścieranie i zamocowane na łożyskach kulkowych o podwyższonej trwałości. Osadzone są w zawiasach bocznych, które zapewniają stabilne prowadzenie bramy w prowadnicach i minimalizują hałas podczas pracy. W wersji PROFI+ zastosowano rolki pojedyncze.

Zasilacz awaryjny
Zasilacz awaryjny to opcjonalny element układu automatyki, pozwalający na otwieranie i zamykanie bramy w przypadku zaniku napięcia sieciowego. Urządzenie wykorzystuje akumulator o pojemności dostosowanej do kilku pełnych cykli pracy napędu i automatycznie przełącza się w tryb zasilania awaryjnego. Obudowa z tworzywa ABS chroni układ przed wilgocią, a wbudowany system zabezpiecza przed głębokim rozładowaniem ogniw.

Napęd i sterowanie
Bramy PROFI+ mogą współpracować z wieloma modelami napędów, w tym Aperto 550 L (2 pilot 2-kanałowy), Aperto 800 XL (2 pilot 2-kanałowy), Sommer BASE+ 800 N (1 pilot 4-kanałowy), Sommer BASE+ 1100 N (1 pilot 4-kanałowy) oraz serią Marantec Comfort 260–380 z różnymi konfiguracjami pilotów. Modele o niższej mocy przeznaczone są do bram o szerokości do 3,5 m, a jednostki o większym momencie (np. 800 XL lub 1100 N) do bram o masie przekraczającej 100 kg. Napędy wyposażone są w miękki start i stop, układ wykrywania przeszkód oraz możliwość podłączenia zewnętrznych urządzeń sterujących, takich jak fotokomórki czy klawiatura kodowa.

Fotokomórki
Zestaw fotokomórek pracuje w podczerwieni i stanowi element układu bezpieczeństwa, który zatrzymuje ruch bramy po przerwaniu wiązki między nadajnikiem a odbiornikiem. Urządzenia montowane są przy dolnej krawędzi prowadnic, a zasięg działania wynosi około 10 m. Obudowa o klasie szczelności IP 54 zapewnia odporność na wilgoć i pył, a regulowany kąt montażu pozwala na precyzyjne ustawienie osi wiązki. Fotokomórki są opcją za dopłatą.

Piloty
System sterowania radiowego wykorzystuje piloty o częstotliwości 868 MHz z kodowaniem zmiennym Rolling Code. Dostępne są wersje 2-kanałowe i 4-kanałowe, umożliwiające obsługę jednej lub kilku bram. Obudowa pilotów wykonana jest z tworzywa odpornego na uderzenia.

Rygiel wewnętrzny
Rygiel wewnętrzny pełni funkcję mechanicznego zabezpieczenia bramy przed otwarciem od zewnątrz. Wykonany jest ze stalowego pręta pozwalający na dodatkowe zamknęcie bramy. Zastosowanie rygla zwiększa bezpieczeństwo bramy i stanowi instotny element uniemożliwiajacy wyważenie bramy. Rygiel jest opcją za dopłatą.

Kolorystyka wewnętrzna
Od strony wewnętrznej panele wykończone są w kolorze białym RAL 9016. Powłoka lakiernicza charakteryzuje się wysoką odpornością na ścieranie oraz działanie środków chemicznych stosowanych w garażach. Jasna powierzchnia poprawia doświetlenie wnętrza i ułatwia utrzymanie czystości.

Okucia i szyny prowadzące
Okucia, zawiasy i prowadnice wykonane są ze stali ocynkowanej o grubości 1,5 mm, co zapewnia odpowiednią sztywność i odporność na korozję. Kolor elementów pozostaje naturalny – srebrny ocynk.

Szyna prowadząca
Szyna prowadząca stanowi element układu napędowego, odpowiedzialny za przenoszenie ruchu z siłownika na wózek bramy. Wykonana jest z profilu stalowego o przekroju zamkniętym, zabezpieczonego powłoką cynkową przed korozją. Wewnątrz prowadnicy znajduje się system pociągowy w dwóch wariantach: z paskiem zębatym lub z łańcuchem stalowym. Wersja z paskiem charakteryzuje się cichszą i płynniejszą pracą, co jest szczególnie istotne w garażach zlokalizowanych bezpośrednio przy części mieszkalnej. Napęd z łańcuchem cechuje się natomiast wyższą odpornością na obciążenia i jest zalecany do bram o większej powierzchni lub intensywnie eksploatowanych. Prowadnica posiada wózek jezdny z elementami ślizgowymi ograniczającymi drgania, a jej montaż do sufitu odbywa się za pomocą stalowych wsporników z regulacją wysokości.

Nasze produkty wyróżniają się tym, co naprawdę ma znaczenie. Poznaj cechy, które czynią je niezawodnymi i wyjątkowymi w codziennym użytkowaniu.
Trwała konstrukcja segmentowa

Panele o grubości 40 mm wypełnione pianką PUR zapewniają dobrą izolacyjność oraz wysoką sztywność całej powierzchni. System pióro–wpust stabilizuje połączenia między segmentami i ogranicza straty ciepła na łączeniach.
Płynna i cicha praca układu prowadzenia

Rolki poruszające się po stalowych prowadnicach na łożyskach kulkowych redukują tarcie i hałas podczas ruchu. Stabilne prowadzenie przekłada się na mniejsze drgania, co wydłuża żywotność mechanizmu i poprawia komfort użytkowania.
Elementy zwiększające bezpieczeństwo

Zabezpieczenia układów sprężyn chronią przed gwałtownym opadnięciem płaszcza w razie awarii. Kształt segmentów zapobiega przytrzaśnięciu palców, a w wariantach automatycznych dostępne są fotokomórki wykrywające przeszkody.
My wiemy! Zobacz mapę naszych dystrybutorów