
Panel o grubości 40mm
Sterowana ręcznie lub automatycznie
Sprężyny skrętne z przodu, z tyłu lub w prowadnicach
Przenikalność cieplna 1,3 W/m2K

![STYLE - Opisy[0]](/_next/image?url=https%3A%2F%2Fcdn-pim.gofakro.com%2F%2FStrony%252520WWW%2FBramy%252520gara%2525C5%2525BCowe%2FSTYLE%252520F_TQS%2Fstyle-f-tqs-02.webp&w=1920&q=75)
Segmentowa konstrukcja oparta na stalowych panelach o grubości 40 mm gwarantuje stabilność i trwałość nawet przy intensywnym użytkowaniu. Rdzeń z pianki poliuretanowej (PUR) o wysokiej gęstości zapewnia sztywność i dobrą izolacyjność cieplną. Panele łączone w systemie pióro–wpust tworzą jednolitą powierzchnię pozbawioną mostków termicznych.
![STYLE - Opisy[1]](/_next/image?url=https%3A%2F%2Fcdn-pim.gofakro.com%2F%2FStrony%252520WWW%2FBramy%252520gara%2525C5%2525BCowe%2FSTYLE%252520F_TQS%2Fstyle-f-tqs-03.webp&w=1920&q=75)
Zastosowanie różnych systemów sprężyn umożliwia dobór optymalnego rozwiązania do warunków zabudowy. Wariant F z umieszczeniem sprężyn skrętnych z przodu sprawdza się w standardowych garażach, R z montażem z tyłu umożliwia instalację przy niskim nadprożu, a X z systemem naciągowym jest idealny tam, gdzie liczy się maksymalne wykorzystanie przestrzeni. Wszystkie konfiguracje zapewniają płynne i wyważone działanie płaszcza oraz precyzyjne prowadzenie w torach.
![STYLE - Opisy[2]](/_next/image?url=https%3A%2F%2Fcdn-pim.gofakro.com%2F%2FStrony%252520WWW%2FBramy%252520gara%2525C5%2525BCowe%2FSTYLE%252520F_TQS%2Fstyle-f-tqs-04.webp&w=1920&q=75)
Napęd elektryczny Marantec gwarantuje stabilną i precyzyjną pracę bramy w każdych warunkach. Mechanizm działa w oparciu o szynę napędową z paskiem zębatym, który przenosi moment obrotowy z dużą dokładnością, a jednocześnie eliminuje hałas charakterystyczny dla tradycyjnych napędów łańcuchowych. Napęd posiada funkcję miękkiego startu i zatrzymania, regulację prędkości oraz system detekcji przeszkód, który zatrzymuje lub cofa bramę w przypadku oporu. W standardzie znajduje się również zintegrowane oświetlenie LED oraz możliwość połączenia z systemem Smart Home.
![STYLE - Opisy[3]](/_next/image?url=https%3A%2F%2Fcdn-pim.gofakro.com%2F%2FStrony%252520WWW%2FBramy%252520gara%2525C5%2525BCowe%2F%252521%252520Poziome%2F01-desktop.webp&w=1920&q=75)
Panele o grubości 40 mm wypełnione pianką poliuretanową (PUR) zapewniają wysoki poziom izolacyjności cieplnej, dzięki czemu brama sprawdza się także w garażach ogrzewanych. Współczynnik przenikania ciepła dla całej konstrukcji wynosi U = 1,3 W/(m²K). Pianka o zamkniętej strukturze komórkowej skutecznie ogranicza przenikanie wilgoci i tłumi hałas pochodzący z zewnątrz.
Wzdłuż całego obwodu zastosowano uszczelki wykonane z gumy EPDM odpornej na zmienne temperatury i promieniowanie UV. Profil wargowy między panelami eliminuje nieszczelności, a elastyczna dolna listwa dopasowuje się do nierówności posadzki, tworząc szczelną barierę przeciw pyłowi, wilgoci i przeciągom. Układ uszczelnień utrzymuje swoje właściwości przez długie lata użytkowania bez konieczności konserwacji.
![STYLE - Opisy[5]](/_next/image?url=https%3A%2F%2Fcdn-pim.gofakro.com%2F%2FStrony%252520WWW%2FBramy%252520gara%2525C5%2525BCowe%2F%252521%252520Poziome%2F02-desktop.webp&w=1920&q=75)
System sprężyn i linek nośnych (w wybranych rozmiarach) wyposażono w mechaniczne blokady bezpieczeństwa, które zatrzymują płaszcz w przypadku awarii jednej z części nośnych. Zastosowane rozwiązanie nie wymaga zasilania i spełnia wymogi normy EN 13241, dotyczącej bezpieczeństwa użytkowania bram segmentowych. Dolne prowadnice posiadają nakładki ochronne izolujące stal od podłoża, co ogranicza powstawanie korozji i wydłuża trwałość elementów konstrukcyjnych.
Prowadnice, zawiasy i wsporniki wykonano ze stali ocynkowanej o grubości 1,5 mm, co gwarantuje sztywność i odporność na odkształcenia. Rolki z łożyskami kulkowymi pracują w podwójnym układzie, co poprawia stabilność i ogranicza hałas w trakcie ruchu bramy.
![STYLE - Opisy[7]](/_next/image?url=https%3A%2F%2Fcdn-pim.gofakro.com%2F%2FStrony%252520WWW%2FBramy%252520gara%2525C5%2525BCowe%2F%252521%252520Poziome%2F03-desktop.webp&w=1920&q=75)
Panele zewnętrzne dostępne są w strukturach woodgrain, smooth, deep mat, piasowych oraz drewnopodobnych, co pozwala na dopasowanie wyglądu bramy do charakteru budynku. Warstwa lakiernicza tworzy trwałą powłokę odporną na promieniowanie UV i zarysowania. W ofercie znajdują się kolory podstawowe RAL 9016 (biały), RAL 7016 (antracyt), RAL 7016 (antracyt drewnopodobny), RAL 8014 (brąz), RAL 9006 (srebrny), RAL 9005 (czarny) oraz dekory drewnopodobne: Złoty Dąb, Winchester, Orzech, Dąb bagienny i Turner Oak.
Od strony wewnętrznej powierzchnia paneli wykończona jest w kolorze biały RAL 9016, co optycznie rozjaśnia przestrzeń garażu. Jasna kolorystyka ułatwia konserwację i podkreśla czystość wykonania całej konstrukcji.
| Szerokość bramy [mm] | ||||||||||||
|---|---|---|---|---|---|---|---|---|---|---|---|---|
| Wysokość bramy [mm] | 2400 | 2500 | 2600 | 2750 | 3000 | 3200 | 3500 | 4000 | 4250 | 4500 | 5000 | 6000 |
| 1875 | F, X, R | F, X, R | F, X, R | F, X, R | F, X, R | F, X, R | F, X, R | F, X, R | F, X, R | F, X, R | F, R | F |
| 2000 | F, X, R | F, X, R | F, X, R | F, X, R | F, X, R | F, X, R | F, X, R | F, X, R | F, X, R | F, X, R | F, R | F |
| 2125 | F, X, R | F, X, R | F, X, R | F, X, R | F, X, R | F, X, R | F, X, R | F, X, R | F, X, R | F, X, R | F, R | F |
| 2250 | F, X, R | F, X, R | F, X, R | F, X, R | F, X, R | F, X, R | F, X, R | F, X, R | F, X, R | F, X, R | F, R | F |
| 2375 | F, X, R | F, X, R | F, X, R | F, X, R | F, X, R | F, X, R | F, X, R | F, X, R | F, X, R | F, X, R | F, R | F |
| 2500 | F, X, R | F, X, R | F, X, R | F, X, R | F, X, R | F, X, R | F, X, R | F, X, R | F, X, R | F, R | F, R | F |
| 2625 | F, R | F, R | F, R | F, R | F, R | F, R | F, R | F, R | F, R | F, R | F, R | F |
| 2750 | F, R | F, R | F, R | F, R | F, R | F, R | F, R | F, R | F, R | F, R | F, R | F |
| 2875 | F, R | F, R | F, R | F, R | F, R | F, R | F, R | F, R | F, R | F, R | F | F |
| 3000 | F, R | F, R | F, R | F, R | F, R | F, R | F, R | F, R | F, R | F, R | F | F |
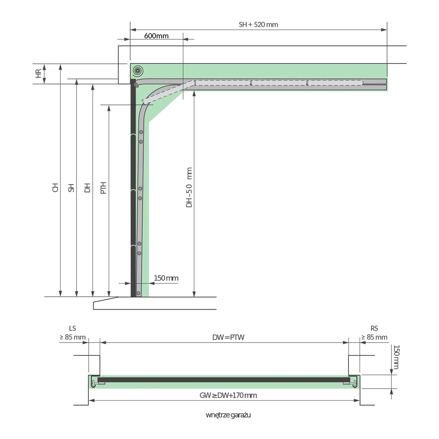
![STYLE - Opisy[9]](https://cdn-pim.gofakro.com//Strony%2520WWW/Bramy%2520gara%25C5%25BCowe/STYLE%2520F_TQS/wymiary-style-f.webp)
| Opis | Wartość / Zależność |
|---|---|
| DH – Wysokość otworu (wymiar zamówieniowy) | — |
| DW – Szerokość otworu (wymiar zamówieniowy) | — |
| HR – Nadproże | HR ≥ 200 mm |
| SH – Wysokość systemu prowadnic | SH = DH + 60 mm |
| CH – Wymagana minimalna wysokość garażu | CH = DH + 200 mm |
| GW – Wymagana minimalna szerokość garażu | GW = DW + 180 mm |
| LS – Przestrzeń boczna lewa (węgarek) | LS ≥ 90 mm |
| RS – Przestrzeń boczna prawa (węgarek) | RS ≥ 90 mm |
| PTH – Światło przejazdu (wysokość) | PTH = DH − 175 mm (ręczna) PTH = DH − 10 mm (automatyczna) |
| PTW – Światło przejazdu (szerokość) | PTW = DW |
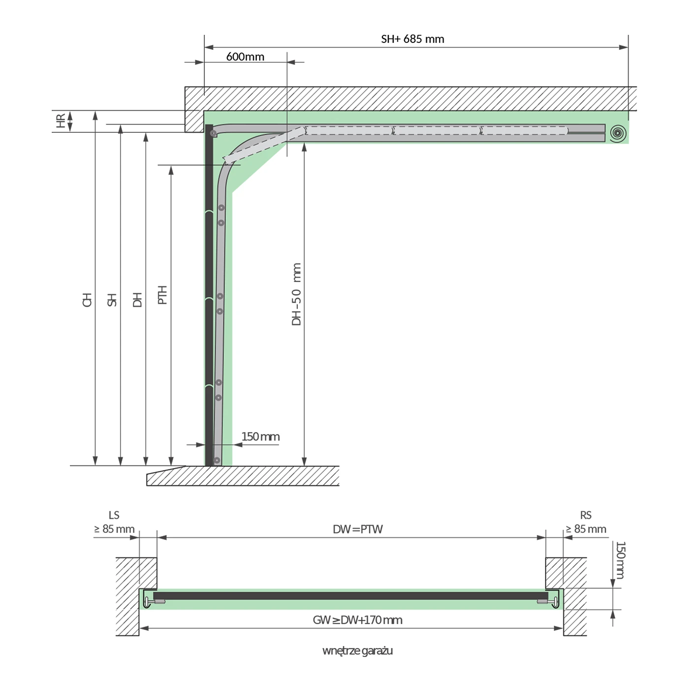
![STYLE - Opisy[10]](https://cdn-pim.gofakro.com//Strony%2520WWW/Bramy%2520gara%25C5%25BCowe/STYLE%2520F_TQS/wymiary-style-r.webp)
| Opis | Wartość / Zależność |
|---|---|
| DH – Wysokość otworu (wymiar zamówieniowy) | — |
| DW – Szerokość otworu (wymiar zamówieniowy) | — |
| HR – Nadproże | HR ≥ 100 mm (ręczna) HR ≥ 130 mm (automatyczna) |
| SH – Wysokość systemu prowadnic | SH = DH + 60 mm |
| CH – Wymagana minimalna wysokość garażu | CH = DH + 100 mm |
| GW – Wymagana minimalna szerokość garażu | GW = DW + 180 mm |
| LS – Przestrzeń boczna lewa (węgarek) | LS ≥ 90 mm |
| RS – Przestrzeń boczna prawa (węgarek) | RS ≥ 90 mm |
| PTH – Światło przejazdu (wysokość) | PTH = DH − 175 mm (ręczna) PTH = DH − 10 mm (automatyczna) |
| PTW – Światło przejazdu (szerokość) | PTW = DW |
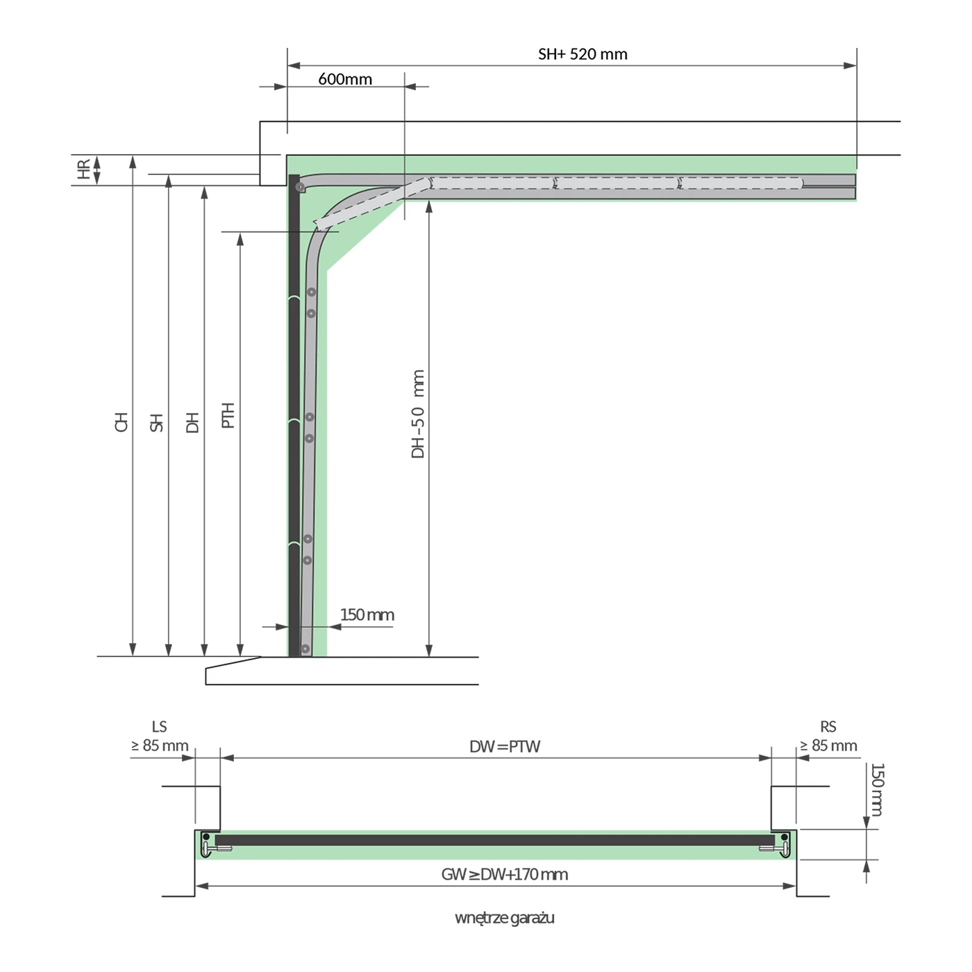
![STYLE - Opisy[11]](https://cdn-pim.gofakro.com//Strony%2520WWW/Bramy%2520gara%25C5%25BCowe/STYLE%2520F_TQS/wymiary-style-x.webp)
| Opis | Wartość / Zależność |
|---|---|
| DH – Wysokość otworu (wymiar zamówieniowy) | — |
| DW – Szerokość otworu (wymiar zamówieniowy) | — |
| HR – Nadproże | HR ≥ 100 mm (ręczna) HR ≥ 130 mm (automatyczna) |
| SH – Wysokość systemu prowadnic | SH = DH + 60 mm |
| CH – Wymagana minimalna wysokość garażu | CH = DH + 100 mm |
| GW – Wymagana minimalna szerokość garażu | GW = DW + 180 mm |
| LS – Przestrzeń boczna lewa (węgarek) | LS ≥ 90 mm |
| RS – Przestrzeń boczna prawa (węgarek) | RS ≥ 90 mm |
| PTH – Światło przejazdu (wysokość) | PTH = DH − 175 mm (ręczna) PTH = DH − 10 mm (automatyczna) |
| PTW – Światło przejazdu (szerokość) | PTW = DW |
Panel bramy
Panel o grubości 40 mm wykonany jest z dwóch stalowych blach. Wypełnienie stanowi pianka poliuretanowa PUR. Segmenty łączone są w systemie pióro–wpust, eliminując mostki termiczne i zapewniając równą powierzchnię całego płaszcza. Konstrukcja panelu pozwala uzyskać współczynnik przenikania ciepla 1,3 W/(m²K).

Kolorystyka zewnętrzna
Strona zewnętrzna paneli dostępna jest w strukturach: woodgrain, smooth, deep mat, drewnopodobnej oraz piaskowej. Powłoka proszkowa charakteryzuje się odpornością na UV i mikrozarysowania. W wersji STYLE dostępne są kolory podstawowe: Antracyt RAL 7016, Antracyt RAL 7016 drewnopodony, Biały RAL 9016, Brąz RAL 8014, Srebrny RAL 9006, Czarny RAL 9005, Złoty Dąb, Orzech, Winchester, Turner Oak, Dąb bagienny.

Uszczelki obwodowe
System uszczelnień obwodowych składa się z elastycznych profili wykonanych z gumy EPDM odpornej na starzenie, promieniowanie UV i zmienne temperatury. Uszczelki zamontowane są wzdłuż bocznych prowadnic, w górnym profilu oraz w dolnym panelu, tworząc ciągłą barierę ograniczającą infiltrację powietrza i wody. Dzięki odpowiednio dobranej twardości materiału zapewniają one szczelne przyleganie do podłoża i krawędzi prowadnic, poprawiając parametry cieplne i akustyczne całej konstrukcji.

Uszczelki międzypanelowe
Połączenia pomiędzy poszczególnymi segmentami wyposażone są w wargowe uszczelki z EPDM, które kompensują drobne odchyłki wymiarowe i niwelują przenikanie powietrza oraz wody w strefie łączenia. Profil uszczelki został zaprojektowany tak, aby podczas pracy bramy utrzymywać stały docisk między panelami, niezależnie od temperatury i kierunku ruchu. Element ten pełni również funkcję tłumienia drgań, co wpływa na cichą i stabilną pracę całego płaszcza.

Zabezpieczenie pęknięcia sprężyn
System sprężyn skrętnych i naciągowych wyposażony jest w mechanizm blokujący, który w przypadku pęknięcia sprężyny natychmiast zatrzymuje obrót wału lub mechanizmu prowadzącego. Rozwiązanie działa mechanicznie – bez potrzeby zasilania – i blokuje bębny nawojowe, zapobiegając nagłemu opadnięciu skrzydła. Mechanizm spełnia wymagania normy EN 13241 w zakresie bezpieczeństwa użytkowania i może być ponownie użyty po wymianie uszkodzonej sprężyny.

System sprężyn F / R / X
Bramę STYLE można wyposażyć w trzy rozwiązania sprężynowe:
F – sprężyny skrętne z przodu montowane do nadproża, nad płaszczem bramy - zalecane przy standardowych wysokościach montażowych;
R – sprężyny skrętne montowane z tyłu, na końcu prowadnic poziomych w głębi garażu - umożliwiające instalację przy niskim nadprożu;
X – system sprężyn naciągowych zamontowanych w prowadnicach pionowych, przeznaczony do ograniczonych przestrzeni montażowych. W systemie tym zastosowane są osłony pionowe, które zakrywają sprężyny i robią je niewidoczne dla użytkownika.
Sprężyny skrętne mają żywotność 25 tys. cykli, a naciągowe 15 tys. cykli, zgodnie z tabelą parametrów technicznych.

Rolki prowadzące
Rolki wykonane są z tworzywa o podwyższonej odporności na ścieranie, osadzone na łożyskach kulkowych. W wersji STYLE stosowane są rolki podwójne z osłonami ochronnymi, które poprawiają estetykę i bezpieczeństwo użytkowania. Kolor osłon zbliżony jest do koloru reszty ocynkowanych elementów bramy. Rolki podwójne i łożyskowane zapewniają cichy oraz bardziej płynny bieg płaszcza bramy w prowadnicach.

Zasilacz awaryjny
Opcjonalne urządzenie podtrzymujące pozwala na obsługę bramy w przypadku zaniku zasilania sieciowego. Akumulator zapewnia wykonanie kilku pełnych cykli pracy napędu Marantec, automatycznie przełącza się na zasilanie awaryjne i posiada zabezpieczenie przed głębokim rozładowaniem ogniw.

Napęd i sterowanie
Bramy STYLE współpracują z napędami Marantec Comfort, wyposażonymi w funkcję miękkiego startu i zatrzymania, system wykrywania przeszkód oraz regulację prędkości pracy. Mechanizm pracuje w oparciu o szynę napędową z paskiem zębatym, który zapewnia cichą i płynną pracę, a jednocześnie nie wymaga smarowania ani konserwacji. Dostępne jest sterowanie pilotami radiowymi oraz integracja z systemem FAKRO Smart Home.

Fotokomórki
Fotokomórki pracujące w podczerwieni stanowią element zabezpieczający. Przerwanie wiązki powoduje zatrzymanie bramy i automatyczne cofnięcie płaszcza. Obudowa o stopniu ochrony IP54 zwiększa odporność urządzeń na kurz i wilgoć, a regulowany kąt montażu ułatwia precyzyjne ustawienie toru wiązki. Fotokomórki są opcją za dopłatą.

Piloty
System sterowania radiowego wykorzystuje piloty o częstotliwości 868 MHz z kodowaniem zmiennym Rolling Code. Dostępne są wersje 2-kanałowe i 4-kanałowe, umożliwiające obsługę jednej lub kilku bram. Obudowa pilotów wykonana jest z tworzywa odpornego na uderzenia.

Rygiel wewnętrzny
Rygiel wewnętrzny pełni funkcję mechanicznego zabezpieczenia bramy przed otwarciem od zewnątrz. Wykonany jest ze stalowego pręta pozwalający na dodatkowe zamknęcie bramy. Zastosowanie rygla zwiększa bezpieczeństwo bramy i stanowi instotny element uniemożliwiajacy wyważenie bramy. Rygiel jest opcją za dopłatą.

Kolorystyka wewnętrzna
Od strony wewnętrznej panele wykończone są w kolorze białym RAL 9016. Powłoka lakiernicza charakteryzuje się wysoką odpornością na ścieranie oraz działanie środków chemicznych stosowanych w garażach. Jasna powierzchnia poprawia doświetlenie wnętrza i ułatwia utrzymanie czystości.

Okucia i szyny prowadzące
Okucia wykonane są ze stali ocynkowanej o grubości 1,5 mm, formowanej z wysoką dokładnością wymiarową. Prowadnice pionowe posiadają nakładki antykorozyjne zabezpieczające dolne sekcje przed wilgocią.

Szyna napędowa z paskiem
Szyna napędowa wykonana jest z profilu stalowego zabezpieczonego cynkiem. Wewnątrz znajduje się pasek zębaty charakteryzujący się elastycznością, odpornością na rozciąganie i cichą pracą. Wózek napędowy wykonuje ruch liniowy bez drgań, a montaż odbywa się na stalowych wspornikach z możliwością regulacji.

Nasze produkty wyróżniają się tym, co naprawdę ma znaczenie. Poznaj cechy, które czynią je niezawodnymi i wyjątkowymi w codziennym użytkowaniu.
Trwała konstrukcja segmentowa

Panele o grubości 40 mm wypełnione pianką PUR zapewniają dobrą izolacyjność oraz wysoką sztywność całej powierzchni. System pióro–wpust stabilizuje połączenia między segmentami i ogranicza straty ciepła na łączeniach.
Płynna i cicha praca układu prowadzenia

Rolki poruszające się po stalowych prowadnicach na łożyskach kulkowych redukują tarcie i hałas podczas ruchu. Stabilne prowadzenie przekłada się na mniejsze drgania, co wydłuża żywotność mechanizmu i poprawia komfort użytkowania.
Elementy zwiększające bezpieczeństwo

Zabezpieczenia układów sprężyn chronią przed gwałtownym opadnięciem płaszcza w razie awarii. Kształt segmentów zapobiega przytrzaśnięciu palców, a w wariantach automatycznych dostępne są fotokomórki wykrywające przeszkody.
My wiemy! Zobacz mapę naszych dystrybutorów